※図面と現状が異なる場合は現状優先となります

【明石市大久保町江井島179-27 3LDK 3980万円】
内見希望に関してはお気軽にスタッフにお尋ねください。

3,980万円

3LDK

山陽電鉄本線「江井ケ島」歩8分
山陽電鉄本線「中八木」歩23分
山陽電鉄本線「西江井ケ島」歩24分

兵庫県明石市大久保町江井島179-27
| 土地面積 | 215.54m2(登記) |
|---|---|
| 建物面積 | 112.02m2(登記) |
| 完成時期 (築年月) | 2001年6月 |
| 土地の 権利形態 | 所有権 |
| 備考 | ※現状渡し ※設備修復義務免責 ※物件内動産は協議の上不必要であれば売主で撤去します ※勝手口の鍵がございません |
【見学無料】
少しでも気になる、不安があるなどの、ご相談(無料)はいつでもお受けしてます♪
■オーシャンビュー家の中から海が一望できます♪
■江井島駅まで徒歩10分の好立地
■駐車2台
■2020 年頃1F 和室壁改修、和室畳全交換 ウッドデッキ施工
■2023 年8 月給湯器交換
☆シーリングライト、エアコン、冷蔵庫他、そのままでのお渡し可能
周辺環境

イオン明石:約歩25分(1942m)
エーコープJAファーマーズプチフレッシュ・モア江井ヶ島:約歩18分(1391m)
マルアイ大久保店:約歩21分(1623m)

セブンイレブン明石江井ヶ島駅前店:約歩9分(705m)
ファミリーマート明石八木店:約歩15分(1177m)

ウエルシア明石西江井ヶ島店:約歩21分(1642m)

明石山手台郵便局:約歩27分(約2130m)

えいの里保育園:約歩7分(529m)
明石市立江井島小学校:約歩14分(1116m)
明石市立江井島中学校:約歩22分(1684m)

医療法人双葉会江井島病院:約歩18分(1388m)
医療法人社団英明会大西脳神経外科病院:約歩19分(1513m)

JAあかし江井ケ島支店:約歩9分(648m)
※地図上に表示される物件の位置は付近住所に所在することを表すものであり、実際の物件所在地とは異なる場合がございます。
※地図の更新タイミングの関係で、物件情報が実際のものとは異なる場合や最新情報に更新されていない場合がございます。
※以下の南西諸島及び離島においては、表示される物件の位置が実際のものとは数百メートル程度ずれる場合がございます。
東京都:硫黄島・青ヶ島、沖縄県: 北大東島・南大東島・多良間島・水納島・与那国島・宮古諸島・石垣島・竹富島
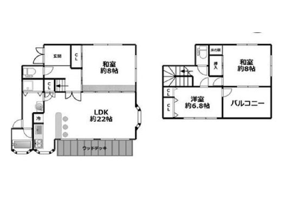
間取り

※図面と現状が異なる場合は現状優先となります

気軽に質問してみませんか?

物件の特長
| バス・トイレ | 浴室乾燥機シャワー付洗面化粧台、トイレ2ヶ所、浴室1坪以上、温水洗浄便座 、浴室に窓、節水型トイレ、高機能トイレ |
|---|---|
| キッチン | システムキッチン、省エネ給湯器、 対面式キッチン、床下収納、浄水器 |
| セキュリティ | セキュリティ充実、TVモニタ付インターホン |
| 室内設備 | LDK20畳以上、和室、南面バルコニー、全居室フローリング、 全居室6畳以上、全居室複層ガラスか複層サッシ |
| 部屋の特長 | 全部屋収納あり、南向き、複層ガラス |
| 駐車・駐輪 | カースペースあり駐車2台可 |
| 費用・ 引き渡し条件 | – |
| 物件の性能 | フラット35・S適合証明書、省エネルギー対策、フラット35Sに対応、 高気密高断熱住宅 |
| その他特長 | 2沿線以上利用可 、土地50坪以上、市街地が近い、 駅まで平坦 |
物件概要・詳細

引渡可能時期
相談

販売戸数
1戸

現況
空家
| 私道面積 | 無、北東5m幅(接道幅9.2m) |
|---|---|
| 建ぺい率・容積率 | 60%・200% |
| 構造・工法 | 木造 2階建 |
| 地目 | 宅地 |
| 地勢 | 平坦 |
| 建築確認番号 | |
| 用途地域 | 第一種住居地域 |
| その他制限事項 | ※建築基準法22条区域 ※土砂災害警戒区域 ※上下水道、都市ガス |
| 取引態様 | 媒介 |













