
【太寺天王町 3LDK 4180万円】
内見希望に関してはお気軽にスタッフにお尋ねください。

4,180万円

3LDK / 木造 2階建

JR山陽本線 明石駅 約徒歩20分
JR山陽本線 人丸前駅 約徒歩20分
山陽電車 山陽明石駅 約徒歩23分

兵庫県明石市太寺天王町2880-9 [地図]
| 土地面積 | 97.8㎡(実測) |
|---|---|
| 建物面積 | 87.44㎡ |
| 完成時期 (築年月) | 契約後4カ月 |
| 土地の 権利形態 | 所有権 |
| 備考 | 私道持分(49.60㎡×1/3)+(19.80㎡×1/3) |
少しでも気になる、不安があるなどの、ご相談(無料)はいつでもお受けしてます。
■広々空間の新築物件♪
■閑静な住宅地
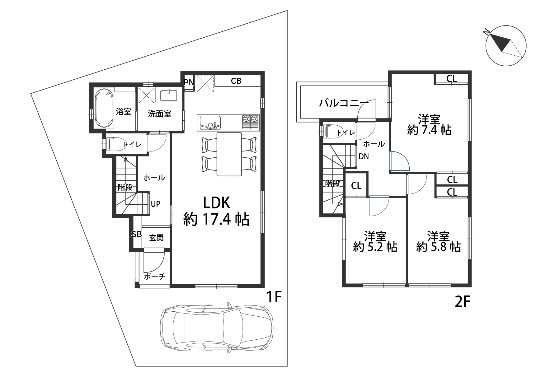
■広々リビング約17.4 帖の3LDK
■主寝室は約7.4 帖のゆったりサイズ
■パンドリーあり
周辺環境

コープこうべ コープミニ太寺:約徒歩8分(約600m)
農産物直売所 めぐみの郷 伊川谷店:約徒歩9分(約650m)
業務スーパー フレッシュ石守:約徒歩23分(約1600m)
アスピア明石:約徒歩21分(約1500m)

セブン-イレブン 明石太寺天王町店:約徒歩9分(約650m)

ココカラファインドラッグストアライフォート人丸店:約徒歩16分(約1100m)
マツモトキヨシ アスピア明石店:約徒歩21分(約1500m)

明石上ノ丸郵便局:約徒歩7分(約500m)

牧羊幼稚園:約徒歩6分(約450m)
人丸幼稚園:約徒歩16分(約1200m)
明石市立人丸小学校:約徒歩15分(約1100m)
明石市立大蔵中学校:約徒歩14分(約1000m)

医療法人社団仁恵会 石井病院:約徒歩18分(約1400m)

DCM 明石店:約徒歩25分(約1900m)
※地図上に表示される物件の位置は付近住所に所在することを表すものであり、実際の物件所在地とは異なる場合がございます。
※地図の更新タイミングの関係で、物件情報が実際のものとは異なる場合や最新情報に更新されていない場合がございます。
※以下の南西諸島及び離島においては、表示される物件の位置が実際のものとは数百メートル程度ずれる場合がございます。
東京都:硫黄島・青ヶ島、沖縄県: 北大東島・南大東島・多良間島・水納島・与那国島・宮古諸島・石垣島・竹富島
間取り

※図面と現状が異なる場合は現状優先となります

気軽に質問してみませんか?

物件の特長
| バス・トイレ | 洗面化粧台、バストイレ別、洗面脱衣場、2階トイレ |
|---|---|
| キッチン | 対面式キッチン、パンドリーあり、 |
| セキュリティ | セキュリティ充実 |
| 室内設備 | 全居室収納クローゼット、全居室フローリング |
| 部屋の特長 | LDK15畳以上、バルコニー |
| 駐車・駐輪 | カースペースあり |
| 費用・ 引き渡し条件 | – |
| 物件の性能 | |
| その他特長 |
物件概要・詳細

引渡可能時期
契約後4カ月

販売戸数
1戸

現況
未完成
| 私道面積 | 別途あり |
|---|---|
| 建ぺい率・容積率 | 50%・100% |
| 構造・工法 | 木造 2階建 |
| 地目 | 宅地 |
| 地勢 | 平坦 |
| 建築確認番号 | 第HK25-30053号 令和7年7月29日 |
| 用途地域 | 一種低層住居専用地域 |
| その他制限事項 | 私道持分(49.60㎡×1/3)+(19.80㎡×1/3) |
| 取引態様 | 媒介 |













